How to change your character in gta

how to change your character in gta
Switching characters gives you access to character-specific Missions and contacts in Grand Theft Auto V (GTA 5). Read on to learn how to change characters and what instances you can39;t switch between them.

What to pack in hospital bag australia

what to pack in hospital bag australia
What to Pack in a Hospital Bag (with Checklist)When Should You Pack Your Maternity Hospital Bag?Ideally, you should have your hospital bag ready by 36 weeks, or even earlier in case your little one comes a little sooner than expected. Organising individual bags for the mum, baby, and partner can keep everything accessible, so you can focus on labour and delivery without rummaging through a single, over-packed bag.

How to use split in java

how to use split in java
Java String split() MethodString split() method in Java is used to split a string into an array of substrings based on matches of the given regular expression or specified delimiter. This method returns a string array containing the required substring.

How to create calendar in ms word

how to create calendar in ms word
How to Make a Calendar in Word1Open Microsoft Word. It's the dark-blue app with a white "W" on it.

How to poach eggs in poacher

how to poach eggs in poacher
Poaching eggs is a simple cooking technique that can elevate your breakfast or brunch game. In this article, we will explore several methods for how to poach eggs.

How to schedule fortnightly meeting in outlook

how to schedule fortnightly meeting in outlook
How to create a bi-weeklyfortnightly recurring meeting in Outlook?Author: KellyLast Modified: 2024-08-27You might have created many dailyweeklymonthly recurring meetings in Outlook before. But, have you ever created a bi-weekly recurring meeting that repeats every 2 weeks regularly.

Did you miss me in french

did you miss me in french
Guide: How to Say 8220;Did You Miss Me?8221; in FrenchWhen you are reuniting with someone after a period of separation, it8217;s natural to wonder if they missed you. Expressing this sentiment in French can add a touch of romance and elegance to your conversation.

How to live in peace with yourself

how to live in peace with yourself
How to Live in Peace This article was co-authored by Nicolette Tura, MA. Nicolette Tura is an Empowerment Coach based in the San Francisco Bay Area.

How to use rules in outlook

how to use rules in outlook
Outlook rules with examples: how to create, edit and removeThis easy-to-follow guide with practical examples will show you how to set up custom rules in Outlook to automate your inbox organization and focus on what truly matters. Imagine your Outlook as a tidy room where important emails are prioritized, distractions are filtered out and everything is neatly sorted into its rightful place.

When to plant onion sets in texas

when to plant onion sets in texas
Do you want to grow onions in Texas, but don8217;t know when to plant them?Planting onions is not as easy as it seems. Here8217;s why: Onions are not able to survive frost or cold weather under 50 degrees Fahrenheit.

Movies in tvm theatres

movies in tvm theatres
Movies in TrivandrumLatest Movies to Book in TrivandrumVidaamuyarchi | Dominic and The Ladiesx27; Purse | Rekhachithram | Interstellar (2014) | Narayaneente Moonnanmakkal | Oru Jaathi Jathakam | Ponman | Thandel | Oru Vadakkan Veeragadha | Padmaavat | Loveyapa | Lovedale | Badass Ravi kumar | 4 Seasons | Am Ah | IzhaTrivandrum Online Movie Ticket BookingNow dont miss out on any movie whether it is Hollywood, Bollywood or any regional movies. Book movie tickets for your favourite movies from your home, office or while travelling.

Russian sage in containers

russian sage in containers
Growing Russian Sage in Containers: A Beginner8217;s Guide to Success77Growing Russian Sage in Containers: A Beginner8217;s GuideRussian sage is a beautiful, easy-to-grow plant that is perfect for adding height and color to your garden. It is also a great choice for containers, making it a versatile plant for any space.

How to move apps in android

how to move apps in android
Buying a new mobile phone is always exciting. But, most of the time, configuring the device from scratch and reinstalling all your applications can be very tedious.

How to propagate a succulent in water

how to propagate a succulent in water
Step-by-Step Instructions for Propagating Succulents in WaterIntroductionSucculent plants have gained immense popularity among plant enthusiasts and casual gardeners alike, thanks to their striking appearance and easy care. These water-storing plants come in a variety of shapes, sizes, and colors, which makes them a favorite choice for indoor decor and landscaping.

How to feather hair in photoshop

how to feather hair in photoshop
Unless youre passionately dedicated to pixel art (perhaps due to a misspent youth playing too many 8-bit video game consoles) feathering is one of the most useful features in a modern image editor like Photoshop.  Feathering allows you to create softened edges when working with a range of Photoshop tools from selections to any of the brush-based tools.

Gas and mucus in stool

gas and mucus in stool
Why Is There Mucus in My Stool?Mucus in stool is relatively common and can be caused by constipation or dehydration. However, in some cases, it points to a more serious underlying condition.

How to spell bare in mind

how to spell bare in mind
Ask our teamWant to contact us directly. No problem.

How to create a test in powerpoint

how to create a test in powerpoint
How to Make an Interactive Quiz in PowerPoint in Less Than 1 Minute (50 Use Cases)Want to engage your audience, get them involved, and check their understanding without learning and juggling another tool. Well lets make an interactive quiz in PowerPoint thats as easy as adding a button, customizable, and to native PowerPoint.

When to plant fruit trees in arizona

when to plant fruit trees in arizona
Arizona: Fruit Tree Growing Guide nbsp;Arizona provides a unique set of climates that are perfect for growing fruit trees. The Low desert provides the perfect environment for tropical trees like Citrus to thrive while the northeast has the right balance of chill hours and heat to grow things like Peaches, Plums, and Apples.

It use in sentence

it use in sentence
SentencesA Word Can Be Used in a Sentence Many WaysSometimes to understand a word's meaning you need more than a definition; you need to see the word used in a sentence. At YourDictionary, we give you the tools to learn what a word means and how to use it correctly.

Netflix series lost in space cast

netflix series lost in space cast
Lost in Space (2018 TV series)American science fiction television seriesLost in Space is an American science fiction television series following the adventures of a family of space colonists whose ship veers off course. The series is a reimagining of the 1965 series of the same name, inspired by the 1812 novel The Swiss Family Robinson and the 1962 Gold Key comic book Space Family Robinson, created by Del Connell and artist Dan Spiegle.

How to delete apps in iphone xs

how to delete apps in iphone xs
Touch and hold the app. Tap Remove App.

Bleeding in between your period

bleeding in between your period
Vaginal bleeding between periods or after sex This page is about bleeding between periods or after sex. Find out about other kinds of unusual bleeding:Non-urgent advice: See a GP or go to a sexual health clinic if: you're bleeding between periods or after sexFind a sexual health clinicUrgent advice: Ask for an urgent GP appointment or get help from NHS 111 if: you have recently missed a period, have unusual vaginal bleeding, and have pain anywhere in your tummy (abdomen), including your lower tummy (pelvic pain)This could be a sign of an ectopic pregnancy and needs to be checked as soon as possible.

How to clear scratch disk in photoshop

how to clear scratch disk in photoshop
How to edit and clear scratch disks in Adobe PhotoshopUpdated: 03052023 by Computer HopeWhile computers today come with more memory than ever, there are a few programs that may use an excessive amount. Luckily, some applications can utilize scratch space (referred to as a scratch disk by Adobe) as quot;overflowquot; to help share the load.

How to cook black rice in microwave

how to cook black rice in microwave
How to cook black rice in microwave recipesAuthor: Gladys ValenzaDate: 2022-09-29 Scoop the rice into the microwave-safe container or pot. Fill the pot with water and swish the water and rice with your hands.

How to sum text in excel

how to sum text in excel
how to sum text in excelSumming text in Excel might sound tricky, but its actually pretty straightforward. You use Excel functions to count or sum numbers embedded in text strings.

What to do in london nightlife

what to do in london nightlife
Things to do at night in London to experience the city like a localWhen the sun sets and youre done exploring St. Jamesx27;s Park and Buckingham Palace, it will be time to plan an evening in the British capital.

Beautiful places in greece

beautiful places in greece
This sun-kissed European country offers everything from serene sandy beaches to vibrant ancient history. It caters to all, from history buffs and nature enthusiasts to clubbers and beachgoers.

How to get giga bowser in melee

how to get giga bowser in melee
This page describes Giga Bowser in general and his appearance in Melee and Ultimate. For his appearance as Bowser's Final Smash, see Giga Bowser (Final Smash).

How to reduce broad shoulder in female

how to reduce broad shoulder in female
Broad shoulders are often characterized by a shoulder width that is significantly wider than the hips. This body type is generally seen as an inverted triangle shape and can make some women feel self-conscious about their appearance.

How to gain confidence in public speaking

how to gain confidence in public speaking
Essential Strategies to Boost Your Public Speaking ConfidenceSee also: Effective SpeakingIn today's globalized world, the ability to communicate effectively in public is more than a mere skill it's an indispensable part of personal and professional life. Public speaking is a multifaceted art that integrates aspects of communication, personal development, and leadership.

How to use dried figs in recipes

how to use dried figs in recipes
23 Best Dried Fig Recipes and IdeasWith their concentrated honey sweetness and delicious chewy texture, these easy dried fig recipes are just what you need to satisfy your sweet tooth. Because although they8217;re delicious right out of the bag, there are more ways to enjoy dried fruits than just as a sweet and juicy snack.

Learn to lindy hop in a day

learn to lindy hop in a day
Learn to Dance in a DayBeginner dance workshops in Lindy Hop, Solo Charleston and BluesOur Dance in a Day workshops are beginner dance workshops aimed at introducing you to the key principles and moves of Lindy Hop, Charleston and Blues. Theyre perfect for people who want to learn to dance but dont know where to begin.

How have u been in hindi

how have u been in hindi
The phrase "How have you been?" is a common greeting in English, reflecting a concern for someone's well-being and recent experiences. Translating this phrase into Hindi, "त2369;म क2376;स2375; ह2379;?" (Tum kaise ho?), it holds a similar intent to inquire about an individual's state of being, health, and overall life circumstances.

How to calculate percentage in mobile calculator

how to calculate percentage in mobile calculator
How to Calculate Percentages on a Calculator This article was co-authored by David Jia and by wikiHow staff writer, Aly Rusciano. David Jia is an Academic Tutor and the Founder of LA Math Tutoring, a private tutoring company based in Los Angeles, California.

Career objective sample in resume

career objective sample in resume
50 Smart Resume Objective Samples 038; Templates (Career Objective) A strong resume objective can catch an employer8217;s eye right away. It8217;s a short statement at the top of your resume that sums up your career goals and skills.

How to cook steak in bbq

how to cook steak in bbq
This post may contain affiliate links. If you use these links to buy something we may earn a small commission.

How to check signal strength in mobile

how to check signal strength in mobile
Frequently, individuals are confronted with circumstances in which the strength of mobile phone signals is diminished. How to check the signal strength of your mobile phoneIn a general sense, the assessment of the prevailing signal strength is typically conducted by seeing the signal icon located in the top right corner of a mobile phone.

How to put spreadsheet in word

how to put spreadsheet in word
Ever need to insert an Excel worksheet into a Word document and have them linked so that when you update the main Excel worksheet, it automatically updates the values in the Word document also?Well, there are actually a couple ofnbsp;ways to insert an Excel spreadsheetnbsp;into Word: linking, embedding and creating a new one. Whether you embed or link, the inserted Excel spreadsheet will not automatically get updated unless you specifically create the link between the two files.

How to create session in java

how to create session in java
Session Management in JavaSession is used to save user information momentarily on the server. It starts from the instance the user logs into the application and remains till the user logs out of the application or shuts down the machine.

Movies running in brookfield mall coimbatore

movies running in brookfield mall coimbatore
About PVR Cinemas Brookefields Coimbatore is a movie theater located in Coimbatore, Tamil Nadu. The average rating of this place is 4.

Male cat spraying in house

male cat spraying in house
How to Stop a Cat Spraying Indoors: Vet Shares 11 SolutionsIntroduction Cat spraying, also known as urine marking, is a common problem that can frustrate owners. It is upsetting when your home smells like cat urine, and itx27;s tiring and expensive to clean and replace items continuously.

How to create environment variable in ssis

how to create environment variable in ssis
Lesson 1-1 - Creating Working Folders and Environment VariablesApplies to:SQL Server SSIS Integration Runtime in Azure Data FactoryIn this task, you will create the working folder (C:DeploymentTutorial) and the new system environment variables ( and ) that you will use in later tutorial tasks. The working folder is at the root of the C drive.

Soya bean dal recipe in hindi

soya bean dal recipe in hindi
कभी खाई है सोयाबीन की चटपटी दाल. यहां देखें रेसिपी और फटाफट करें तैयारSoyabean Dal Recipe: संडे के दिन लंच में कुछ हल्का औऱ स्पेशल बनाना है तो आप सोयाबीन की दाल ट्राई कर सकते हैं.

How to spell hwaiting in korean

how to spell hwaiting in korean
Tips and Examples to Say 8220;Hwaiting8221; in Korean Are you a fan of Korean dramas, music, or pop culture. If so, you may have come across the term 8220;hwaiting8221; or 8220;fighting.

How to watch vijay tv in uk

how to watch vijay tv in uk
Watching Zee TV channels in the UK | Indian life abroadWatching Star TV channels in the UK | Indian Life AbroadIf youve been in the UK for a while, you might be missing all of your favourite shows from home. Whats happening with Mishti and Abir in Yeh Rishtey Hain Pyaar Ke.

How to do footwork in breakdancing

how to do footwork in breakdancing
How to Breakdance | Footwork CombinationBreakdancing, also known as breaking, is more than just dance; itrsquo;s an art form that combines rhythm, agility, and expression. For those ready to dive into this vibrant culture, learning the basic footwork combinations is a fundamental step.

How to mirror object in photoshop

how to mirror object in photoshop
How to Mirror an Image in Photoshop Learn how to create a classic mirror image effect in Photoshop with this easy step-by-step tutorial. Watch the video or follow along with the written guide.

Family guy excellence in broadcasting full episode

family guy excellence in broadcasting full episode
Excellence in Broadcasting2nd episode of the 9th season of Family Guy"Excellence in Broadcasting" is the second episode of the ninth season of the animatedcomedy seriesFamily Guy. It originally aired on Fox in the United States on October 3, 2010.

How to change size in premiere pro

how to change size in premiere pro
Published: September 16, 2021 | Last Updated: October 31, 2024There are multiple methods for resizing videos on your timeline, which I8217;ll cover in this article. Note that resizing videos can affect the image quality, so you must choose the right way depending on your video resolution.

How to cash in lottery scratchers

how to cash in lottery scratchers
What Time Do They Start 038; Stop Cashing Scratch Off Lottery Tickets?Part of the appeal of popular scratch off lottery tickets is that a player instantly knows whether theyve won or not. Theres no need to wait for national draws, pick numbers, or even stand in long lines to get a regular lottery ticket.

Badam milk shake recipe in hindi

badam milk shake recipe in hindi
अवलोकन:Badam Shake Recipe In Hindi मलाईदार और पौष्टिक. ये रेसिपी है एनर्जी बूस्ट देने वाली और रिफ्रेशिंग ट्रीट के लिए परफेक्ट। इसमें बादाम की अच्छाई है साथ में थोड़ा मिठास का तड़का भी। ये बनाने में आसान है और एक शानदार तरीका है बादाम के रिच फ्लेवर को एक संतुष्टिदायक शेक में आनंद लेने का।Table of Contentsपकाने का समय:nbsp;10 मिनटसामग्री:1 कप भीगोए हुए बादाम2 कप ठंडा दूध4-5 चम्मच चीनी या मनपसंद मिठाई का पाउडर12 चम्मच इलाइची पाउडरकुछ ज़फ़रान के धागे (वैकल्पिक)बर्फ के टुकड़े (वैकल्पिक)तारिके Badam Shake Recipe In Hindiबादाम तैयार करें:nbsp;बादाम को रात भर या कम से कम 4-6 घंटे भीगो दें और फिर उनकी चिलके निकल दें।ब्लेंड करें:ब्लेंडर में भीगोये बादाम, दूध, चीनी, इलाइची पाउडर, और ज़फ़रान को मिलायें और अच्छे से ब्लेंड करें।परोसें:nbsp;शेक को गिलास में डालें.

How to find hole in air bed

how to find hole in air bed
FacebookTweetPinAre you tired of waking up in the middle of the night to find yourself sinking into a deflated air mattress. Don8217;t worry; we8217;ve got you covered.

Movie in ashoka behala

movie in ashoka behala
Asoka Cinema Hall - Kolkatanbsp;nbsp; SharePhoto Video galleryArray ( [0] Monday: 10:30 AM u2013 8:30 PM [1] Tuesday: 10:30 AM u2013 8:30 PM [2] Wednesday: 10:30 AM u2013 8:30 PM [3] Thursday: 10:30 AM u2013 8:30 PM [4] Friday: 10:30 AM u2013 8:30 PM [5] Saturday: 10:30 AM u2013 8:30 PM [6] Sunday: 10:30 AM u2013 8:30 PM ) About this placeMovie Theatre Timings : 10:30 AM to 8:30Number : 91 33 2397 3630Near By Rabindra Sadan1. 80 Km 27 min.

How to print two columns in excel

how to print two columns in excel
Now that your columns and layout are ready, it's time to set the print area. This step tells Excel exactly what part of your spreadsheet to print, which is crucial when you're dealing with large sheets.

Places to go in canggu

places to go in canggu
20 Best Things to Do in Canggu, Bali [Updated 2025]Canggu, located on Balis southwestern coast, is a vibrant destination known for its eclectic mix of surf culture, trendy cafes, lush rice fields, and buzzing nightlife. Whether you8217;re a digital nomad, a surf enthusiast, or a wellness seeker, theres something for everyone.

Best places to go in london england

best places to go in london england
54 Things To Do In London You Need To Try At Least Once In Your LifeIn a city as packed full to the brim with excitement and activities as ours is, its not exactly easy to work out which are the very best things to do. After all, weve got a population of around nine million people, and you could probably do something different every day of your life and still not cover everything there is to do here.

How to find sse in excel

how to find sse in excel
In this tutorial, you will learn how to calculate SST, SSR, and SSE in Excel. In order to assess how well the regression line truly fits the data, we frequently utilise three distinct sums of squares values:1.

How to play donkey monkey in cards

how to play donkey monkey in cards
DonkeyDonkey is a speedy card game that is fun for kids of all ages. Sneaky moves and fast pace fun always leads to giggles as the players try not to be labeled DONKEY.

How to open rpt file in android

how to open rpt file in android
Open RPT FileFile extension RPT used by SAP Crystal Reports to store report files. Crystal Reports started as a general use reporting application and grew into full scale business intelligence application targeted at small businesses.

I wanna die in your arms

i wanna die in your arms
(I Just) Died in Your Arms1986 single by Cutting Crew"(I Just) Died in Your Arms" is the debut single by the English pop rock band Cutting Crew, released on 25 July 1986 as a single from their debut studio album, Broadcast. The song was written by frontmanNick Van Eede, produced by Terry Brown, John Jansen and the band, and mixed at Utopia Studios in London by Tim Palmer.

How to off ads in chrome

how to off ads in chrome
Tired of ads popping up left and right while browsing on Google Chrome. Fear not.

How to address a letter in spanish

how to address a letter in spanish
How to Say 8220;Dear8221; for a Letter in Spanish: Formal and Informal Ways When writing a letter in Spanish, using the appropriate salutation is crucial to establish the right tone. Whether you8217;re writing a formal business letter, a friendly letter to a family member, or even a casual note to a friend, the way you address the recipient sets the stage for the whole message.

How to buy shares in jollibee

how to buy shares in jollibee
How to invest in jollibee. (2025) Is it worth it to invest in Jollibee?We can see that JFC had good EPS and financials for the past 5 years.

Things to do in chicago during winter

things to do in chicago during winter
Chicagos Candlelight Concerts is a series of special classical music concerts that take place in beautiful indoor venues bathed in candlelight. Some of the concerts taking place this winter include:Looking for a unique winter activity.

How to prepare dhokla in microwave

how to prepare dhokla in microwave
Dhokla is one of the most beloved snacks originating from the vibrant state of Gujarat, India. Its fluffy texture and tangy flavor make it a perfect treat for breakfast or tea time.

Signs hes losing interest in you

signs hes losing interest in you
Image: Midjourney MomJunction Design TeamAre you getting signs he is losing interest in you. It is common to feel this way.

Display image in react js

display image in react js
How to Upload Image and Preview it Using ReactJS?In React upload and preview images improve the user experience of the application, It8217;s typical for online apps to provide image upload capability that enables users to choose and upload photographs. We simply upload a photo from our local device to our React Project and preview it using a static method URL.

How to spell check in outlook express

how to spell check in outlook express
Where is the Spell Check in Outlook?Outlook, Microsoft8217;s email client, is a powerful tool that helps users manage their emails, contacts, and calendars. One of its most useful features is the spell check, which ensures that the content of the emails is free from grammatical errors.

Where to go in manila when raining

where to go in manila when raining
Dont Let the Rainy Season Stop You and Your Kids from Touring These 7 Best Places to Visit in Metro ManilaHave a friendly competition with your family or friends despite the gloomy weather at SM Bowling Center. Image: SM Supermalls Bowling Facebook pageAnother fun and exhilarating best place to visit in Metro Manila during a rainy day is to play bowling.

All broadway shows in nyc

all broadway shows in nyc
See below to find out what's playing on Broadway. CURRENTLY PLAYING ON BROADWAY JulietRunning time: 2 hours and 30 minutes, including intermissionOpened November 17, 2022Click here to read reviews.

How to sort multidimensional array in php

how to sort multidimensional array in php
PHP array_multisort() Function The array_multisort() is an inbuilt function in PHP which is used to sort multiple arrays at once or a multi-dimensional array with each individual dimension. With this function, one should remember that string keys will be maintained, but numeric keys will be re-indexed, starting at 0 and increases by 1.

What shows in blood test for cancer

what shows in blood test for cancer
Blood testsBlood tests can:check your general health, including how well your liver and kidneys are workingcheck numbers of blood cellshelp diagnose cancer and other conditionsYour blood sample is sent to the laboratory for analysis. This shows the different types of cells, chemicals and proteins in the blood.

How to prepare mango pickle in malayalam

how to prepare mango pickle in malayalam
Rani039;s Kitchen MagicMango is an exotic and a fleshy stone fruit with rich source of vitamin, minerals and fibre. My home town Kerala is blessed with lots of mango trees.

How to file for unemployment in nebraska

how to file for unemployment in nebraska
Everything to Know About Unemployment Benefits in NebraskaUnemployment benefits are a critical pillar of support for individuals who have lost their jobs and are struggling to make ends meet. In the state of Nebraska, unemployment benefits are administered by the Nebraska Department of Labor, which provides financial assistance to eligible workers who have lost their jobs through no fault of their own.

How to use abrupt in a sentence

how to use abrupt in a sentence
Examples of 'abrupt' in a sentenceExamples from the Collins CorpusThese examples have been automatically selected and may contain sensitive content that does not reflect the opinions or policies of Collins, or its parent company HarperCollins. We welcome feedback: report an example sentence to the Collins team.

Watch hot in cleveland free online

watch hot in cleveland free online
Hot in Cleveland - Season 1 (2010) 10 Episodes S1 E1 - PilotS1 E2 - Who's Your Mama?S1 E3 - BirthdatesS1 E4 - The Sex That Got AwayS1 E5 - Good NeighborsS1 E6 - Meet the ParentsS1 E7 - It's Not That ComplicatedS1 E8 - The Play's the ThingS1 E9 - Good Luck Faking the GoiterS1 E10 - Tornado Streaming, rent, or buy Hot in Cleveland Season 1: Currently you are able to watch quot;Hot in Cleveland - Season 1quot; streaming on Paramount Plus, Paramount Plus Apple TV Channel , Paramount Amazon Channel, Paramount Roku Premium Channel or for free with ads on Pluto TV. It is also possible to buy quot;Hot in Cleveland - Season 1quot; as download on Amazon Video, Fandango At Home, Apple TV.

Foods that help in menstruation

foods that help in menstruation
17 Foods to Eat on Your Period Foods to eat on your period-such as high-fiber fruits, leafy greens, and dark chocolate-can help manage symptoms like bloating, cramping, back pain, and fatigue. Certain drinks may also be helpful, like peppermint tea to ease cramps and kombucha to reduce gastrointestinal symptoms.

How to increase orp level in pool

how to increase orp level in pool
Pool ORP Level - What Is It. How Do I Raise It?The ORP level of your pool is a somewhat complex concept that refers to the ability of your pools chemistry to perform oxidation on active microbes and sanitise your water.

An american in paris broadway musical reviews

an american in paris broadway musical reviews
The story of An American in Paris is simple, in the way old movie musical romances are, and complicated because we know the course of true love never runs smoothly. Lise, a French ballet dancer, on the verge of becoming a star, is pursued by three suitors: Adam, a pianist, Jerry, a visual artist and Henri, a cabaret singer, who is hiding the truth about himself from his parents.

Teething problems in babies

teething problems in babies
When your baby starts teething, chances are you8217;ll know about it. A teething rash, red cheeks, excess dribbling, and general irritability are all signs of teething in babies and toddlers.

Black stool blood in toilet

black stool blood in toilet
Bleeding from the bottom (rectal bleeding)A small amount of one-off bleeding from the bottom is not usually a serious problem. But a GP can check.

How to empty trash in iphoto

how to empty trash in iphoto
How to empty the iPhoto bin If you're an iPhoto user, you've probably wondered at some point how to empty iPhoto Trash. Although this task may seem simple, some users may find it difficult to find the appropriate option.

How to compare fields in excel

how to compare fields in excel
How to Compare Two Columns in Excel (for matches 038; differences)Watch Video 8211; Compare two Columns in Excel for matches and differencesThe one query that I get a lot is 8211; 8216;how to compare two columns in Excel?8217;. This can be done in many different ways, and the method to use will depend on the data structure and what the user wants from it.

Cramps in top of stomach while pregnant

cramps in top of stomach while pregnant
Stomach pain in pregnancy Stomach (abdominal) pains or cramps are common in pregnancy. They're usually nothing to worry about, but they can sometimes be a sign of something more serious that needs to be checked.

Chicken in freezer how long

chicken in freezer how long
Freezing raw chicken is a common practice to prolong its shelf life and maintain its quality. However, it is crucial to handle and store raw chicken properly to avoid any risks of foodborne illnesses.

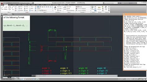
How to create a hatch in autocad

how to create a hatch in autocad
Adding Hatch Patterns in AutoCAD: A Step-by-Step GuideIntroductionAutoCAD is a powerful computer-aided design (CAD) software that allows users to create and edit 2D and 3D models. One of the key features of AutoCAD is its ability to create hatch patterns, which are used to define the shape and appearance of a design.

How to edit portraits in photoshop cc

how to edit portraits in photoshop cc
As a wedding photographer, a part of your job also requires you to edit portraits. And knowing how to edit portraits in Photoshop, which is one of the best ways to perfect your image after you have already shot it, is a skill you will need throughout your career.